音乐图书馆的声学装修设计
文章出处: 人气:发表时间:2017-02-17 14:58

音乐图书馆室内效果图
音乐图书馆的音质设计(佛山声泰)
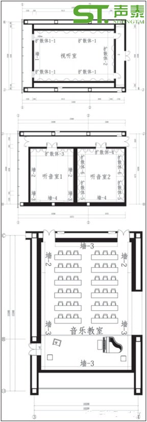
音乐图书馆中,视听室、听音室和音乐教室的房间面积都为100 平方米~200 平方米左右,从声学设计上来说,都属于“小房间”之列。小房间的最大问题之一,就是低频段可能由于驻波引起房间共振的现象,如果不加以适当控制,就会引起低频声染色的问题。所谓低频声染色,又叫低频嗡声,是在小房间中由于低频共振频率的“简并”,引起某一频率被大大加强,引起声源的固有音色失真的现象。这会严重影响房间内的音质效果。因此,为了防止低频共振的产生,其音质设计的主要原则是选择适当的容积和形状,房间的容积不宜过小。同时,房间的尺寸比例要适当。另外,还要采取适当的吸声及扩散处理,以达到所要求的混响时间及其频率特性,并保证有充分的扩散。


音乐图书馆的声学标准测试图:

国内十强吸音板品牌厂家之一:佛山声泰建筑材料有限公司









